CONSERVAÇÃO E VALORIZAÇÃO

 » Roteiro das Terras de Sicó

Este "sítio" deve uma parte significativa dos seus conteúdos ao Roteiro "O Oppidum de Conimbriga e as Terras de Sicó", editado em 1996 e cuja ficha técnica se anexa, como forma de agradecimento aos seus autores.

Na versão da NET sofreu actualizações e desenvolvimentos, adequando-se ao carácter de Roteiro de promoção do Turismo Cultural, de Natureza e em Espaço Rural

O "site" actual foi concebido e realizado por António dos Santos Queirós com o apoio dos serviços técnicos da LAC, de Helena Ferreira e da empresa "wservir, marketing e serviços de web, Lda."

Para a actualização da informaç&a

  • Site do Roteiro das Terras de Sicó
     » As ruínas: antecedentes, projecto e obra
    Conímbriga, praça do fórum, vista desde a entrada.
    Revista Monumentos 25
    DGEN





    A primeira intenção de consolidação que levou, em 1930, a Direcção-Geral dos Edifícios e Monumentos Nacionais (DGEMN) a promover obras de limpeza e fortalecimento de alguns trechos da muralha romana de Conímbriga rapidamente se estendeu aos vestígios entretanto escavados e, nas duas décadas seguintes, a DGEMN realizou um extenso programa de reconstrução, onde a vontade de restauração se sobrepunha ao rigor da investigação. O programa delineado pelo arquitecto Baltazar de Castro, director da Secção Norte dos Monumentos Nacionais1, encontrava em Vergílio Correia, professor da Faculdade de Letras da Universidade de Coimbra e director do Museu Nacional de Machado de Castro, o apo
    Conímbriga, reconstituição parcial do fórum, vista desde o criptopórtico.
    Revista Monumentos 25
    DGEN
    Conímbriga, reconstituição parcial do fórum, vista de noroeste.
    Revista Monumentos 25
    DGEN
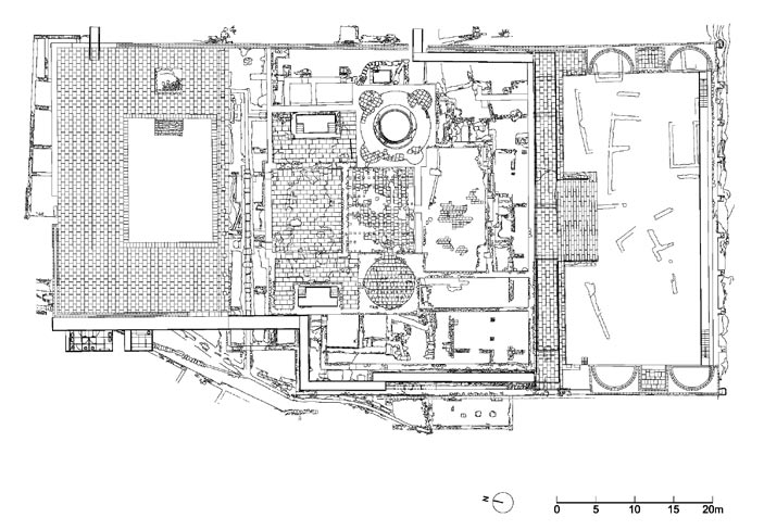
    Conimbriga, planta do fórum.
    Revista Monumentos 25
    DGEN
    Conímbriga, alçado-corte do fórum.
    Revista Monumentos 25
    DGEN
    Conímbriga, palestra das termas a sul do fórum, vista desde o pórtico de acesso.
    Revista Monumentos 25
    DGEN
    Conímbriga, palestra das termas a sul do fórum, vista de nascente.
    Revista Monumentos 25
    DGEN
    Conímbriga, vista do fórum, a partir das termas a sul.
    Revista Monumentos 25
    DGEN
    Conímbriga, alçado-corte das termas a sul do fórum.
    Revista Monumentos 25
    DGEN
    Conímbriga, planta das termas a sul do fórum.
    Revista Monumentos 25
    DGEN
     » O posto de turismo de Conimbriga:
    Conímbriga,posto de turismo.
    Revista Monumentos 25
    DGEN




    O edificado que hoje constitui o Museu Monográfico de Conímbriga é resultado de sucessivas ampliações e remodelações. O edifício primitivo, projectado por Amoroso Lopes em 1959, foi implantado numa zona que não comprometesse uma futura ampliação e era formado por um único corpo, dividido em três zonas distintas. Com o crescente aumento das campanhas de escavação e a necessidade de investigar e conservar os vestígios encontrados em Conímbriga e por todo o país, o espaço disponível rapidamente se tornou insuficiente e, em 1974, foi novamente um arquitecto da DGEMN, António Portugal, chamado a projectar a nova estrutura. Em torno de um pátio de sugestão romana foram então constru&
    Conímbriga, planta e cortes do posto de turísmo.
    Revista Monumentos 25
    DGEN
    Conímbriga, planta de localização do posto de turísmo; evolução das intervenções realizadas entre 1962 e 2004.
    Revista Monumentos 25
    DGEN
  • © 2008 Complexo Monumental de Santiago da Guarda Plano do sítio | Contacto